Сокращение предложения на 10%, рост цен на 15% и рекордная доля квартир без отделки – аналитики компании STONE подводят главные предварительные итоги 2025 года по предложению, ценам и спросу на рынке новостроек бизнес-класса Москвы.
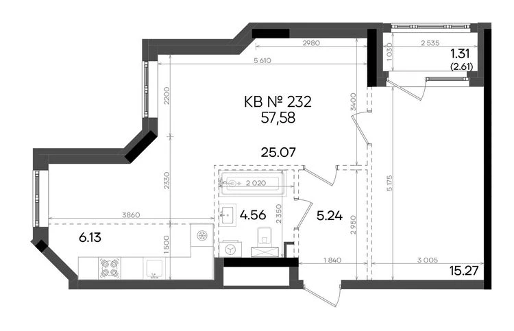
О квартире
Жилой комплекс «Адали» — это воплощение современного бизнес-класса, созданного для активных людей, стремящихся к самовыражению. Квартиры с гибкой планировкой станут холстом для реализации ваших идей.
- 3 дома
- 10/24 этажа
- потолки от 2,9 м
- 545 квартир
- свободные планировки
Комплекс располагается на улице Аделя Кутуя в динамично развивающейся части Советского района. Рядом находятся метро «Горки», автобусные остановки и удобные транспортные развязки, а до центра города можно доехать всего за 15 минут.
Архитектура «Адали» отражает амбиции жителей и динамичное развитие территории. Элегантные фасады с четкой геометрией и яркими акцентами придают комплексу современный и эстетичный вид.
Спортивные площадки, коворкинг на свежем воздухе и кинопатио с проектором для киновечеров делают комплекс идеальным местом для гармоничной жизни. Для жителей будет организована спорт-станция, где будут храниться набор для бадминтона, мячи для командных видов спорта и насос для велосипедов и мячей.
Воспользуйтесь привилегией стартовых цен и подберите свою новую квартиру в «Адали»!