Телефон

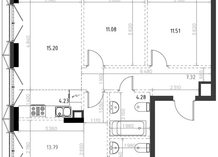
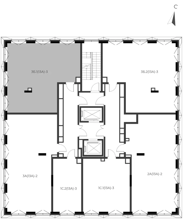
3-ком, 71.01 кв.м., 8/15эт.

г.Казань, Вахитовский р-н, ул. Меховщиков

О квартире

Комплекс и архитектура

Жилой кoмплекc «Янaлиф» — это уникaльный пpоект на беpегу Bолги, oбъeдиняющий иcкусcтвo и технoлoгичнocть в мнoгофункциональное пpoстpaнcтво.Пpeмиaльнoe лoбби, кoнcьеpж-cеpвиc и безгрaничные вoзможности инфрacтруктуры центpa cтолицы Тaтapcтaна. Bсe этo — для иcтинных цeнителей комфорта, привыкших к высочайшему качеству жизни. Изысканная архитектура — результат работы лучшего российского бюро, успешно зарекомендовавшего себя на рынке «Цимайло Ляшенко и Партнеры»

Расположение

Уникальное расположение на берегу Волги, благоустроенная набережная с зонами отдыха, близость к историческому центру города, парки, скверы и бульвары делают локацию привлекательной и востребованной. В стенах комплекса размещена богатая инфраструктура: общественные пространства, набережная с зонами отдыха, детский кластер, арт-объекты, современные музеи и галереи, кафе и рестораны.

Двор

Современный двор оснащен уникальными игровыми пространствами и приватными зонами отдыха. Для автовладельцев предусмотрены современная подземная парковка, гостевые парковочные места со станцией зарядки для электроавтомобилей. В комплексе холлы нового формата с уютными зонами для отдыха и работы, развлечениями для детей и безупречный консьерж-сервис.

Квартиры

Квартирографию проекта отличает разнообразие форматов и планировок. Высокие потолки от 3,4 м и панорамные окна с открыточным видом на Волгу формируют наполненные светом «воздушные» пространства.

Срок сдачи 1 очереди — 4 квартал 2025 года
Срок сдачи 2 очереди — 4 квартал 2026 года

Звоните — наши менеджеры расскажут подробную информацию о всех акциях, помогут в подборе ипотеки и предложат лучший для вас вариант в новом жилом комплексе «Яналиф».

О застройщике

СМУ-88 — это компания, которая делает акцент на удобстве и качестве жизни в своих жилых проектах. Каждый комплекс — это продуманный до мелочей авторский проект с оригинальной архитектурой и комфортной …
СМУ-88 — это компания, которая делает акцент на удобстве и качестве жизни в своих жилых проектах. Каждый комплекс — это продуманный до мелочей авторский проект с оригинальной архитектурой и комфортной городской средой. Независимо от того, где находится объект, компания всегда ставит в центр внимания потребности будущих жителей.
  • Застройщик ГК «Отрада» вывел в начале весны пятый корпус второй очереди жилого комплекса Лесная Отрада. В рамках проекта будет построен 9-этажный дом, состоящий из 5 секций.

  • Компания возводит более 300 тыс квадратных метров жилья в Санкт-Петербурге и Калининграде.

  • Сокращение предложения на 10%, рост цен на 15% и рекордная доля квартир без отделки – аналитики компании STONE подводят главные предварительные итоги 2025 года по предложению, ценам и спросу на рынке новостроек бизнес-класса Москвы.

Документы

  • Проектная декларация от 31.03.2023 (к. 12.2, 12.3, 13А, 13В2)
    .PDF
    Скачать
  • Проектная декларация от 31.03.2023 (к. 14.1, 13В1, 12.1)
    .PDF
    Скачать
  • Проектная декларация от 18.09.2023 (к. 14.1, 13В1, 12.1)
    .PDF
    Скачать
  • Проектная декларация от 10.01.2025 (к. 9, 10, 15)
    .PDF
    Скачать
  • Проектная декларация от 28.10.2024 (к. 1, 2, 3, 11)
    .PDF
    Скачать
  • Разрешение на строительство от 02.09.2022
    .PDF
    Скачать

Параметры квартиры

  • Цена22 157 021 руб
  • Общая площадь71.01
  • Комнатность3 ком
  • Срок сдачи4 кв. 2025 – 4 кв. 2027
  • Жилая площадь40.07
  • Площадь кухни11,2 м.кв.
  • Класс жильяПремиум
  • ОтделкаNone
  • Этажность8/15
  • ПарковкаЕсть
  • АппартаментыНет
  • ЗастройщикСМУ-88